PROJECT TYPE: Residential Building
CLIENT: Undisclosed
SIZE: 473,90 sq m
LOCATION: Carapinheira, Portugal
STATUS: Completed
YEAR: 2013
The site is located in a small rural town in the outskirts of Montemor-o-velho, Portugal. The plot area is a 166 meter long strip of land with a 3,5% slop. The building occupies the highest point, leveled with the access road overlooking the plain.

Pine and eucalyptus trees involve the carved landscape with green dense forests, an old nearby horse stable, constructed with irregular vertical slatted wood, painted with dark heavy black oil and resin mix is part of the scenery that inspired the project. The client is a horse lover, breeds horses and practices equestrianism. The project is a celebration of his passion.

The house evolves mainly on a ground floor layout. The exterior configuration consists on the overlapping of two volumes: a one-story “L” shape vertical slatted wooden volume, remembering the nearby horse stable; and the other a long crooked white concrete form, containing both one and two-stories, evoking a mid-air horse jump.

At ground level, these two volumes create a “T” form defining two unique exterior spaces, one paved with light gray smooth concrete indicating pedestrian and vehicle access and the other with grass and vegetation defining a more reserved area.

The building is organized into three main areas defined by their configuration – services, common, and private. The two-story high ceiling entrance hall is the pivot point to all these areas and allows users to easily switch between them.

On one side of the “L” wooden form is located the service area, the garage is the central space, two large ventilated wooden slatted sliding doors, when open, provide a fluid access between the exterior work environment and interior. The service area is also equipped with other facilities: service toilet, laundry room, technical/equipment room and a multipurpose area. On the opposite side, is located the ground floor private area, three bedrooms and two bathrooms. In all of them, replacing one of the walls, are large sliding doors that open to a common porch, providing a natural flow with the exterior garden. A extra room, office and bathroom are located on the second floor. The room opens to a exterior balcony carved into the roof.

The common area in located in the white concrete form on the ground floor. These include the, dinning room, kitchen, pantry and toilet. The living room is 90cm lower, as it follows the terrain slop allowing it to be on the same level as the garden.

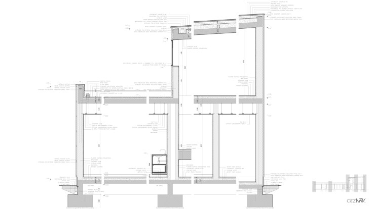
Concrete slabs and columns are used for the structure. The brick outer walls include external thermal insulation. One volume is finished with white plaster and concrete tiles, and the other with a metallic structure to support the vertical wooden slates. The roof consists of two technical solutions the flat roof is finished with a layer of washed gravel while the another with white concrete raised tiles allowing water the flow underneath.
The window and door frames are in natural brushed aluminum. The interior flooring is in wood, with schist tiles paving the wet areas. Inside, the walls and ceilings are plastered and painted white, with white wood skirting boards.







Leave a comment